当前位置:主页 > 案例作品 > 精品案例 >
案例风格
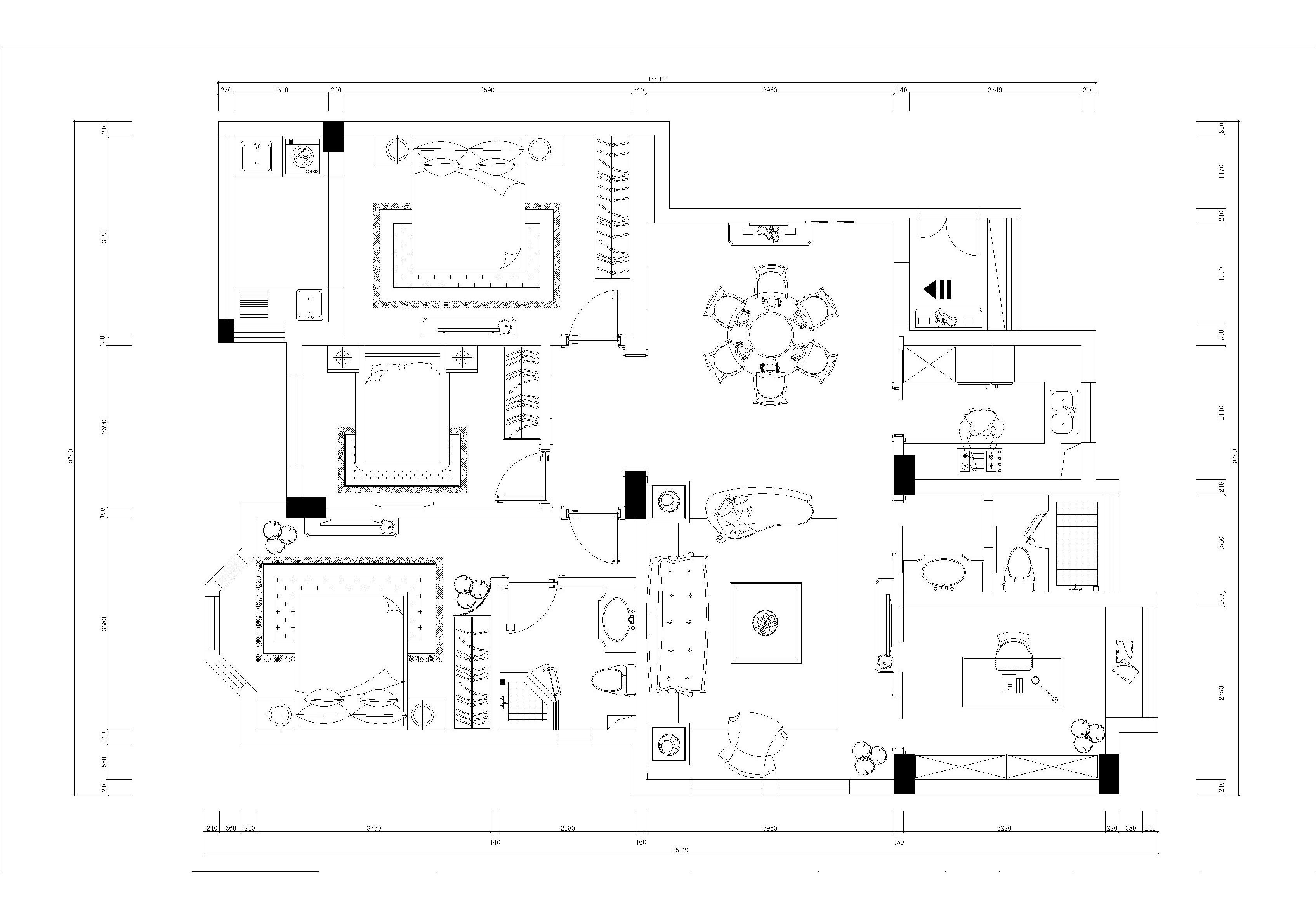
混搭
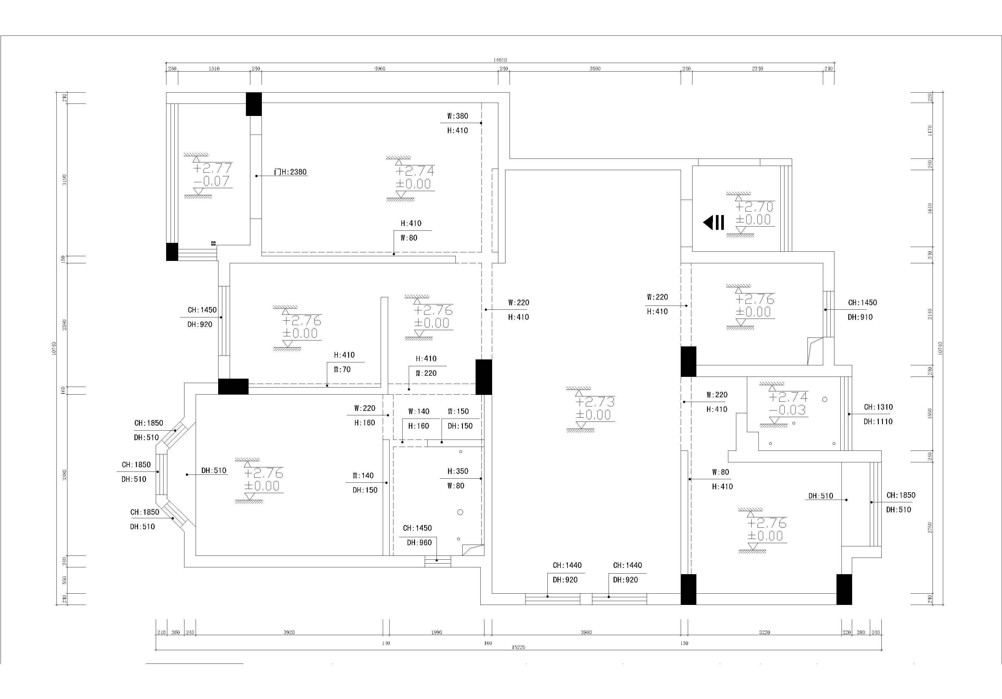
案例户型
普通住宅
案例面积
145
楼盘名称
泰地世锦园
主设计师
俞学腾
案例造价
12万
港式风格的装修中,客厅的以黄色为主调,展现一个休闲的氛围,电视墙处理相当简洁而富品味,色调古旧的电视柜是客厅的焦点所在,港式风格设计简洁自然,展现出的是港式家居风格。客厅中自然的木质色调使居室充满休闲的氛围,是快节奏都市生活的休恬的港湾。
 
本案例设计师简介

姓名:俞学腾

职位:主任设计师

确认报名
相关案例
湖海塘 美式风格
美墅园 614平
湖海塘庄园 180平
仙源 东南亚风格 300平

30秒预测家装费用

房屋户型
楼盘信息
套内面积
装修风格
装修套系
您的称呼
手机号码
短信验证码
获取验证码
智能系统报价
人工精准报价
快速导航