当前位置:主页 > 案例作品 > 精品案例 >
案例风格
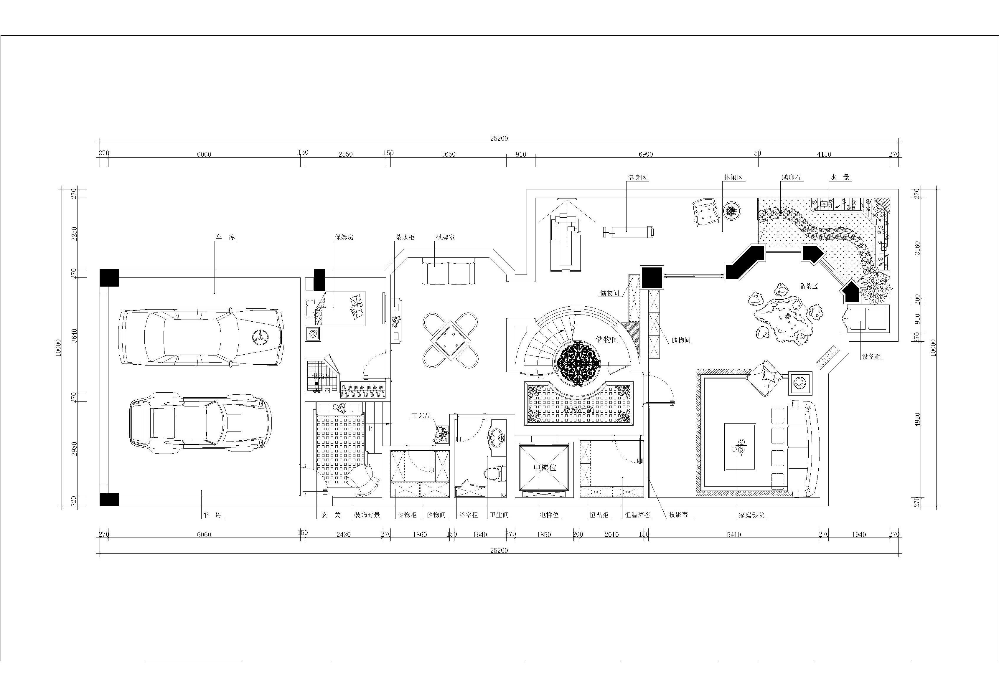
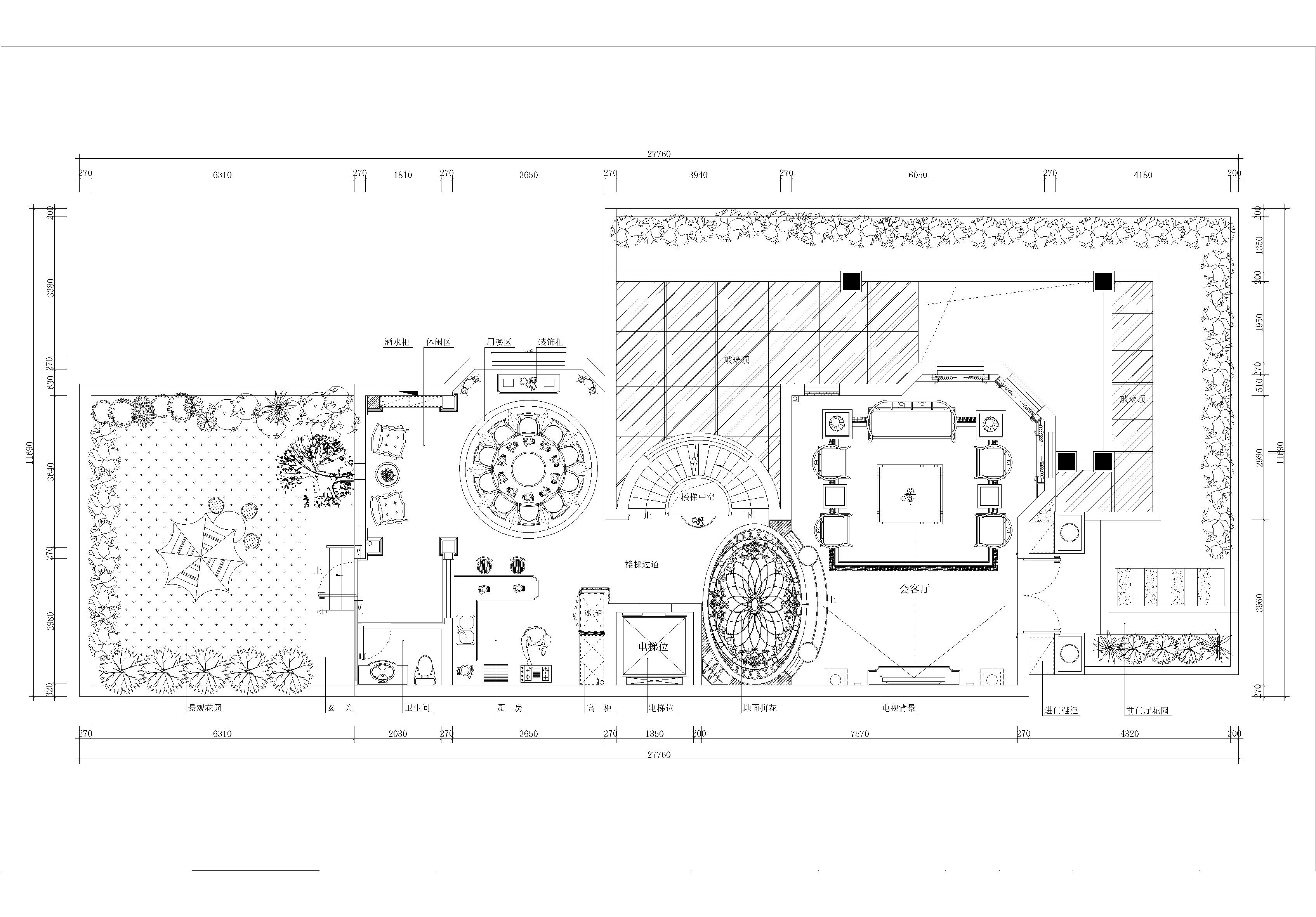
美式
案例户型
别墅
案例面积
365
楼盘名称
兰溪别墅
主设计师
俞学腾
案例造价
40万
客厅作为待客区域,一般要求简洁明快,同时装修较其它空间要更明快光鲜,通常使用大量的石材和木饰面装饰;美国人喜欢有历史感的东西,这不仅反映在软装摆件上对仿古艺术品的喜爱,同时也反映在装修上对各种仿古墙地砖、石材的偏爱和对各种仿旧工艺的追求上。总体而言,美式田园风格的客厅是宽敞而富有历史气息的。
本案例设计师简介

姓名:俞学腾

职位:主任设计师

确认报名
相关案例
湖海塘庄园 180平
湖海塘 美式风格
美墅园 614平
仙源 东南亚风格 300平

30秒预测家装费用

房屋户型
楼盘信息
套内面积
装修风格
装修套系
您的称呼
手机号码
短信验证码
获取验证码
智能系统报价
人工精准报价
快速导航