当前位置:主页 > 案例作品 > 精品案例 >
案例风格
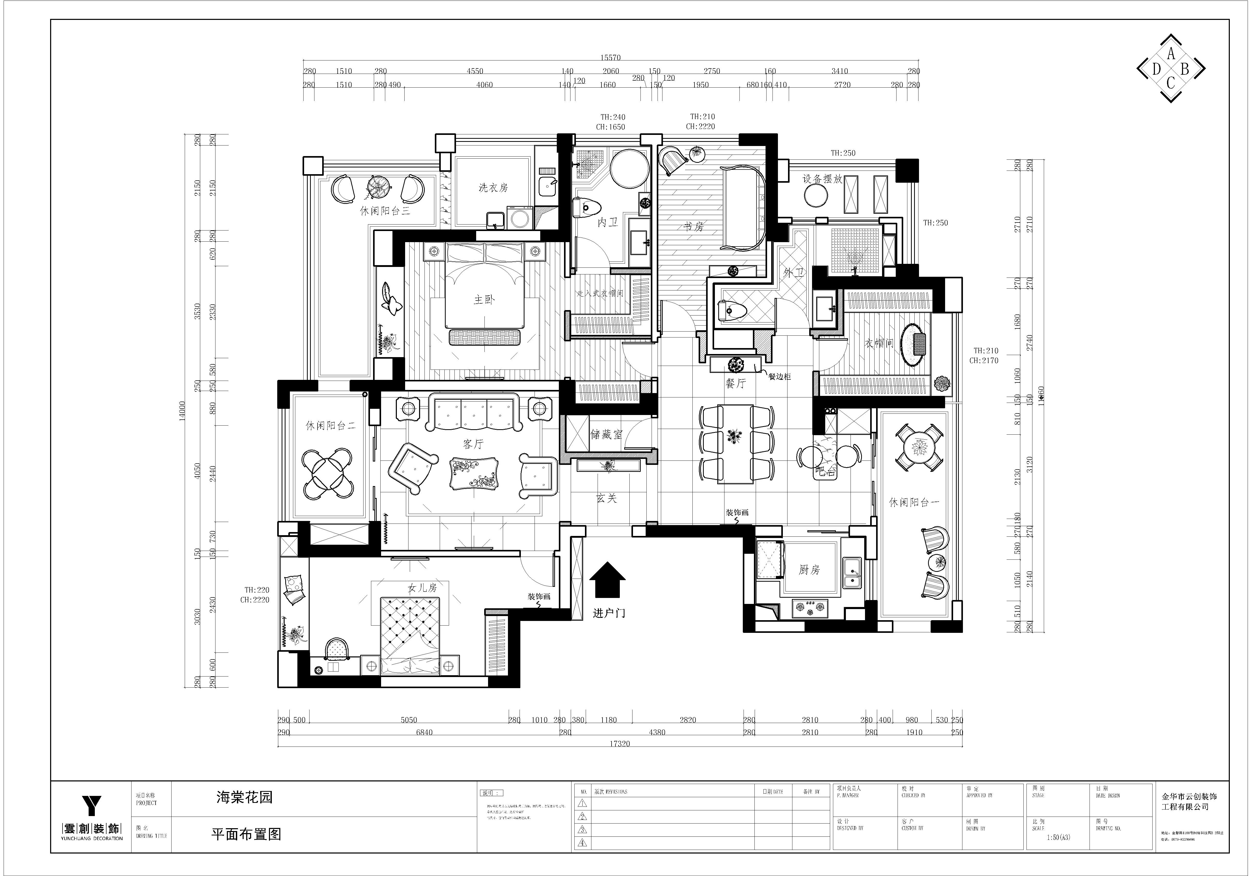
混搭
案例户型
普通住宅
案例面积
176
楼盘名称
海棠花园
主设计师
徐瑛
案例造价
15万
本案例设计师简介

姓名:徐瑛

职位:优秀设计师

确认报名
相关案例
美墅园 614平
湖海塘庄园 180平
湖海塘 美式风格
仙源 东南亚风格 300平

30秒预测家装费用

房屋户型
楼盘信息
套内面积
装修风格
装修套系
您的称呼
手机号码
短信验证码
获取验证码
智能系统报价
人工精准报价
快速导航